The Project
Project: Bogart house
Area: 212 sq.m.
Location: Dnipro, Ukraine
Project: 2018
3D graphics: Alexander Chervinskiy
The Solution
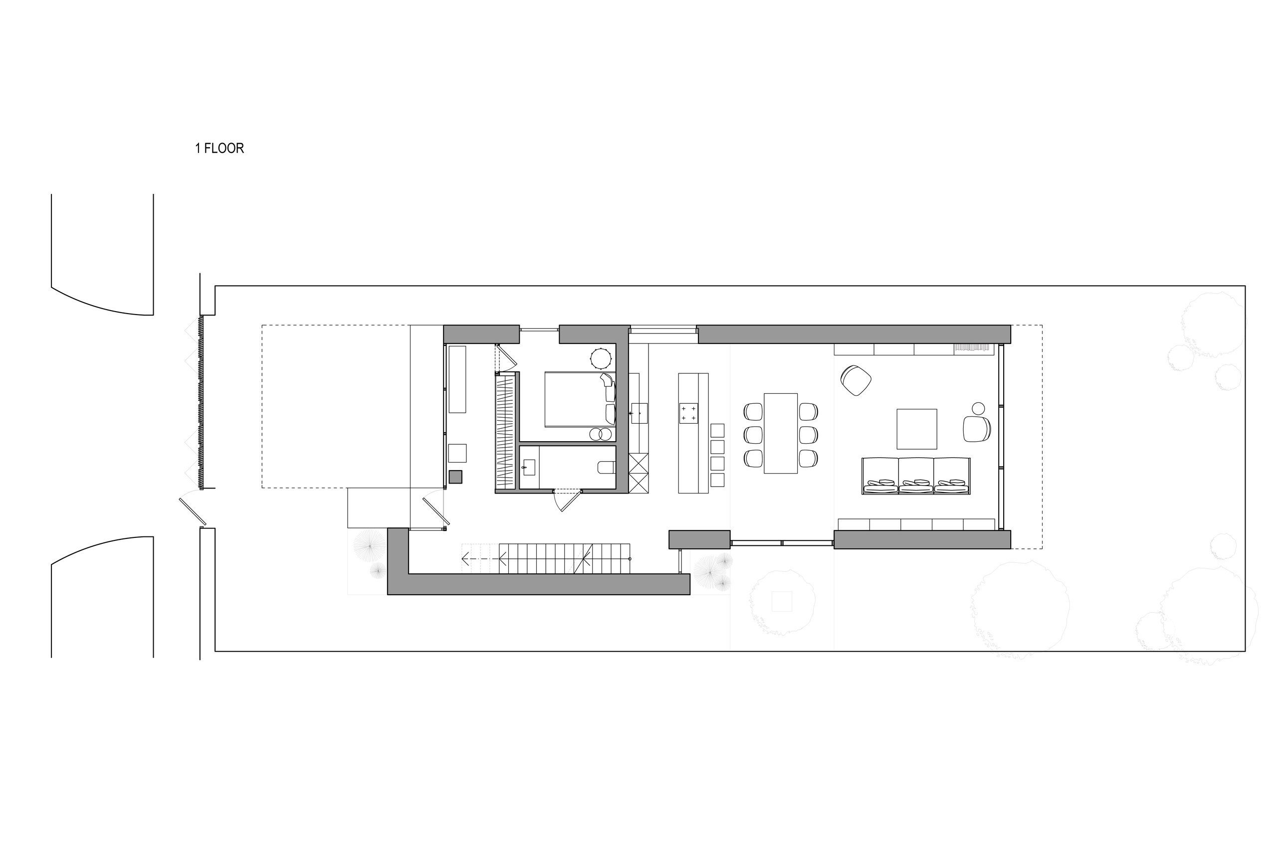
The projected house has two floors and a basement. The first floor consists of a large hall with a cantilevered staircase and an entrance hall with panoramic glazing, a guest room, a bathroom and a common kitchen area, a dining room and a living room with a second light above the dining room and a panoramic roof above it.

The Final Good
A small plot for building 11x30 m is located in the city quarter of private houses. The house is bright and spacious with large spaces and volumes passing into cozy and private areas. The close proximity to the neighbors' houses and the desire to fill this house with the light formed its architecture, panoramic windows and light lanterns in the roof are located so as to maximize the light of the room and create privacy from neighbors. Simple modern architecture, architecture of functionality, but at the same time an expressive voluminous spatial composition and laconic decorations will not leave anyone indifferent to this house.














