Loading...

deep gray

The Project

Project: Deep Gray
Area: 166 sq.m.
Location: Krivyi Rih, Ukraine
Realization: 2020
Photo credits: Andrey Avdeenko

The Solution

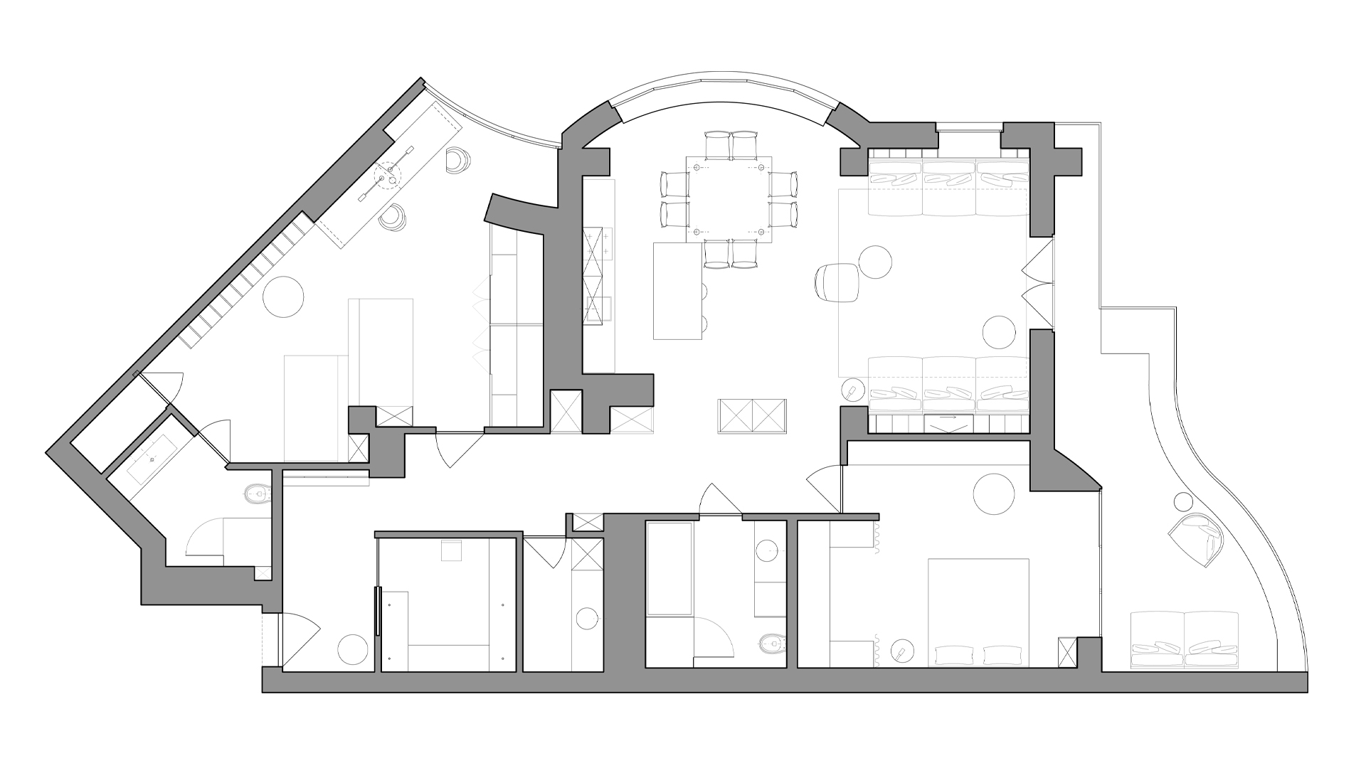
Initially, the apartment was an elongated volume with several columns. Due to the initial data and the wishes of the customer, the planning turned out to be non-standard.

//ap-architects.org/wp-content/uploads/2020/12/план.jpg
The Final Good

This apartment is for a wonderful family with two children. We had great raw data, such as a beautiful concrete ceiling and columns. In general, we made the colour scheme monochrome and added accents to the bedrooms. Where it was not possible to hide the wiring, we used veneer panels and drywall. The living room and master bedroom have access to the terrace. For the nursery, at the request of the customers, we have allocated more squares than the main bedroom. The cuisine and its solutions are very interesting. The refrigerator and storage area was not only a planning solution but also an aesthetic one.

//ap-architects.org/wp-content/uploads/2020/12/23.jpg
//ap-architects.org/wp-content/uploads/2020/12/15.jpg
//ap-architects.org/wp-content/uploads/2020/12/01.jpg
//ap-architects.org/wp-content/uploads/2020/12/02.jpg
//ap-architects.org/wp-content/uploads/2020/12/16.jpg
//ap-architects.org/wp-content/uploads/2020/12/17.jpg
//ap-architects.org/wp-content/uploads/2020/12/06.jpg
//ap-architects.org/wp-content/uploads/2020/12/04.jpg
//ap-architects.org/wp-content/uploads/2020/12/03.jpg
//ap-architects.org/wp-content/uploads/2020/12/05.jpg
//ap-architects.org/wp-content/uploads/2020/12/08.jpg
//ap-architects.org/wp-content/uploads/2020/12/24.jpg
//ap-architects.org/wp-content/uploads/2020/12/25.jpg
//ap-architects.org/wp-content/uploads/2020/12/26.jpg
//ap-architects.org/wp-content/uploads/2020/12/27.jpg
//ap-architects.org/wp-content/uploads/2020/12/09-1.jpg
//ap-architects.org/wp-content/uploads/2020/12/19.jpg
//ap-architects.org/wp-content/uploads/2020/12/20.jpg
//ap-architects.org/wp-content/uploads/2020/12/18.jpg
//ap-architects.org/wp-content/uploads/2020/12/21.jpg
//ap-architects.org/wp-content/uploads/2020/12/07.jpg
//ap-architects.org/wp-content/uploads/2020/12/12.jpg
//ap-architects.org/wp-content/uploads/2020/12/11.jpg
//ap-architects.org/wp-content/uploads/2020/12/35.jpg
//ap-architects.org/wp-content/uploads/2020/12/36.jpg
//ap-architects.org/wp-content/uploads/2020/12/14.jpg
//ap-architects.org/wp-content/uploads/2020/12/30.jpg
//ap-architects.org/wp-content/uploads/2020/12/31.jpg
//ap-architects.org/wp-content/uploads/2020/12/28.jpg
//ap-architects.org/wp-content/uploads/2020/12/33.jpg
//ap-architects.org/wp-content/uploads/2020/12/32.jpg
//ap-architects.org/wp-content/uploads/2020/12/34.jpg
//ap-architects.org/wp-content/uploads/2020/12/22.jpg
//ap-architects.org/wp-content/uploads/2020/12/29.jpg

Recent Projects

True values
Design
Terrace 07
Design
crumb
Design
deep gray
Design