The Project
Project: Terrace 07
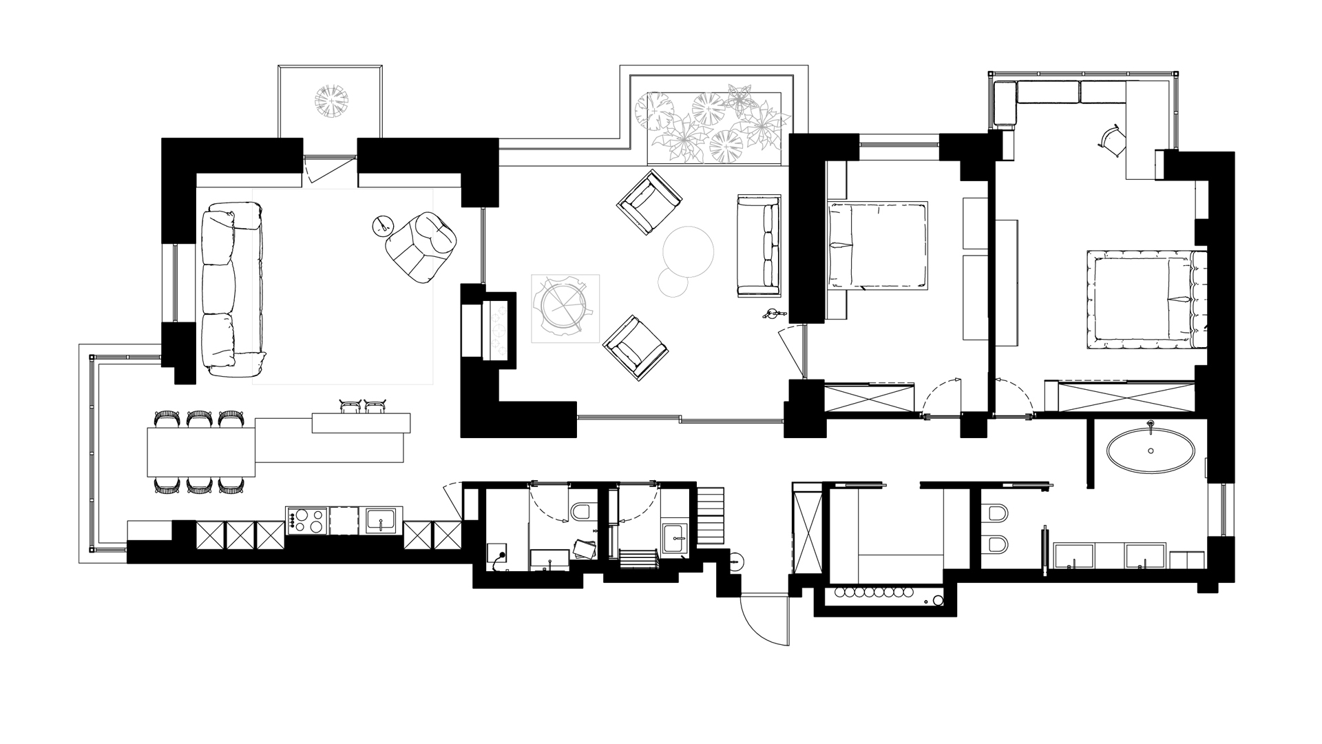
Area: 185 sq.m.
Location: Dnipro, Ukraine
Realization: 2022
Photo: Andrey Avdeenko
The Solution
In this apartment for two people, we were faced with the task of creating a modern minimalistic interior, but at the same time saturating it with colour accents that would attract the eye.

The Final Good
Immediately from the hallway opens the charm of this apartment — a cosy terrace. Such a zone is the advantage of the upper floor, a rare occurrence in an urban environment. In order to achieve the most transparent view of the terrace, we installed a sliding system of two canvases. A bright pouffe decorates this place, and white walls act as a unifying element of the interior. On the floor — parquet board.
The common space consists of a kitchen and a living room. Together with the customer, we carefully thought about the accents that could excite our minds. This is the case when we came to the ideal option together. A sofa in a sophisticated emerald shade that changes colour throughout the day sounds right in this space. Thanks to the colour and shape, the armchair fits perfectly here. On one of the walls, there is frosted glass, on which shelves, a cabinet and a TV are located. We experimented with her appearance for a long time, but in the end, we settled on the right option.
Another bonus of the top floor is the possibility of installing a real fireplace in the living room, which is now very popular with the customer during their holidays.
The neutral colour of the kitchen is like a white sheet of paper on which the decor is visible. Every item here stands out, attracts attention.
Next to it is an almost meditative master bedroom in a minimalist form. The nursery turned out to be just as light and minimalistic, but with rich accents in the form of a sofa and an armchair in the same shade. Above the bed, a picture, which was painted specifically for this interior, organically fit in. From these rooms, you find yourself in a graphic bathroom — with a large mirror on the wall and porcelain stoneware with a textile texture on the floor.
As a result, the interior turned out to be stylistically and technologically modern, to some extent artistic — at the same time, it did not lose its soul and fully displayed the inner world of the customer.





































